设计 | Design : 天用设计
地址 | Address :荷塘月色
风格 | Style :现代北欧风
面积 | Area :82㎡
摄影 | Film : Star.
本案例的常住人口有3人,男女主人和一个刚出生不久的小宝贝。男女主人性格随和温柔,对于未来的家是什么模样,也有了最基础的想象,在设计和喜好的契合之下,整体设计进行得很顺利。
业主诉求:
①两房改三房;
②喜欢弧形设计;
③色彩以蓝白为主,并且希望添加撞色元素;

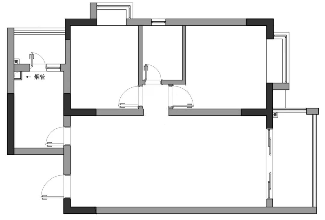
改造前△
改造难点:
①原户型厨房和次卧L型承重墙限制了房间可改造范围和房门位置;
②烟管的位置限制了厨房可变动的区域;
改造后▽

改造方案:
①设计团队经过多次实地考察和商讨方案后,决定从原户型的厨房部分下手,通过改造使其成为房间。将房门上移,从而衍生出一条一米宽的过道,同时最大程度保留了次卧的空间。
②设计团队在考虑了管道走位和整体空间布局后,与业主进行了改造沟通,最后将厨房移动到入户处,通过把厨房和玄关放在同一个区域,做成半开放式厨房。
玄关

入户是一个小小的玄关,麻雀虽小五脏俱全,小玄关也有大功能。
玄关处按照业主日常生活的习惯依次设立了换鞋凳、鞋柜和一个顶天立地柜,方便生活的同时还满足了业主的收纳需求。

为了让空间给人感觉更加整洁,设计团队延长了柜底常用鞋置放空间,并且按照业主的需求给扫地机器人留了置放空间。换鞋凳上方的弧形设计让整体更添灵动感。
单独定制的柜体以大面积的白色作为基底,弧形金色把手游离地点缀在上面,俏皮又美观。

稍稍拐弯,我们就来到了厨房区域。设计团队把厨房放在入户处不仅考虑了管道走位,更注重了实用性。买菜回家的女主人不用再穿过走廊绕进厨房,炎热的夏天入门就可以享受冰可乐带来的快乐,岂不美哉。

厨房设计成了半开放式,随时可以闭合玻璃门窗隔绝了油烟,也让生活更有情调,阳光穿透空间铺散到餐厨区的每个区域,通透感和防油烟的完美结合让每一次做饭都充满了温馨的气息。


设计团队推荐了符合业主喜好的可移动圆弧型餐桌。在房屋整体设计上,圆弧的造型和门洞的弧形相呼应;在实用性方面,餐桌移出后可容纳更多的人就餐。
客厅
客厅拆除原户型的推拉门后,把突出部分的承重墙做了美化处理,连接墙顶做成了女主人喜欢的弧形垭口设计,和玄关鞋凳的弧形设计相呼应,一头一尾,有始有终。
打通客厅和阳台的连接后阳光洒落在这一片区域,带着向往和希望,营造最宜居的生活环境。

电视墙简约而不简单,结合实际空间和视觉效果后选择了不满墙的设计,并在电视背景墙外侧设计了灯带,增添空间的通透感。靠近阳台一侧的墙面在设计团队的多方考虑下做成了弧形,让客厅多了一分独特感和曲线美。

客餐厨整体相互贯通,入户美景尽收眼底,抬头、回首皆是家人的身影,家庭氛围感十足。
主卧

电视墙旁的门进去即是主卧。主卧简洁明了,为了让空间利用更加合理,把衣柜设计在了床尾,满墙定制的柜子满足了业主所需的收纳空间,不留死角也让卧室更方便清洁。
卫生间
穿过拱门就到了卫生间。卫生间采用了三分离设计,功能划分清晰、互不打搅,有效提高了生活效率。同时,最大程度避免了细菌传播,未来给宝宝营造良好的成长环境。

洗漱区单独设计在了走廊一角,通过和门洞相连接封闭了一部分空间,防止水珠四溅的同时,也保证了洗漱区的私密性。
工作室


由于宝宝年龄还小,儿童房暂时改成了工作室。工作室旁是一个小阳台,既可以偶尔作为晾衣区使用,也可以让工作累了的业主有个暂时的休憩远眺之地。

