◑ 设计团队 | Designer:天用设计
◐ 设计风格 | Style:现代简约
◑ 项目地址 | Address:华标广场
◐ 项目面积 | Acreage:160㎡
◑ 摄影团队 | Photograph:Star.
本项目从前期沟通,到摆场拍摄,前前后后加起来花了将近大半年。
看着它从无到有、从简陋到精致,这里面有我们的付出,也有业主的理解与支持。谢谢大家~
业主对于设计方案最基本的需求是实用为主,质量为上,要求品质自内而外。其他的,比如全屋收纳要够用,各功能空间要实用,材质选择要环保等等,天用团队都在具体的设计过程中一一落实。
业主夫妻性格随和,在各自领域有着相当不错的成绩,同时也保持着旺盛的好奇心与对生活的喜爱。
简约大气的新家里,摆着大大小小的航天员和胡桃夹子系列手办,居者们慢慢添置极具个人风格的物品,把日子过得更舒服更美好。
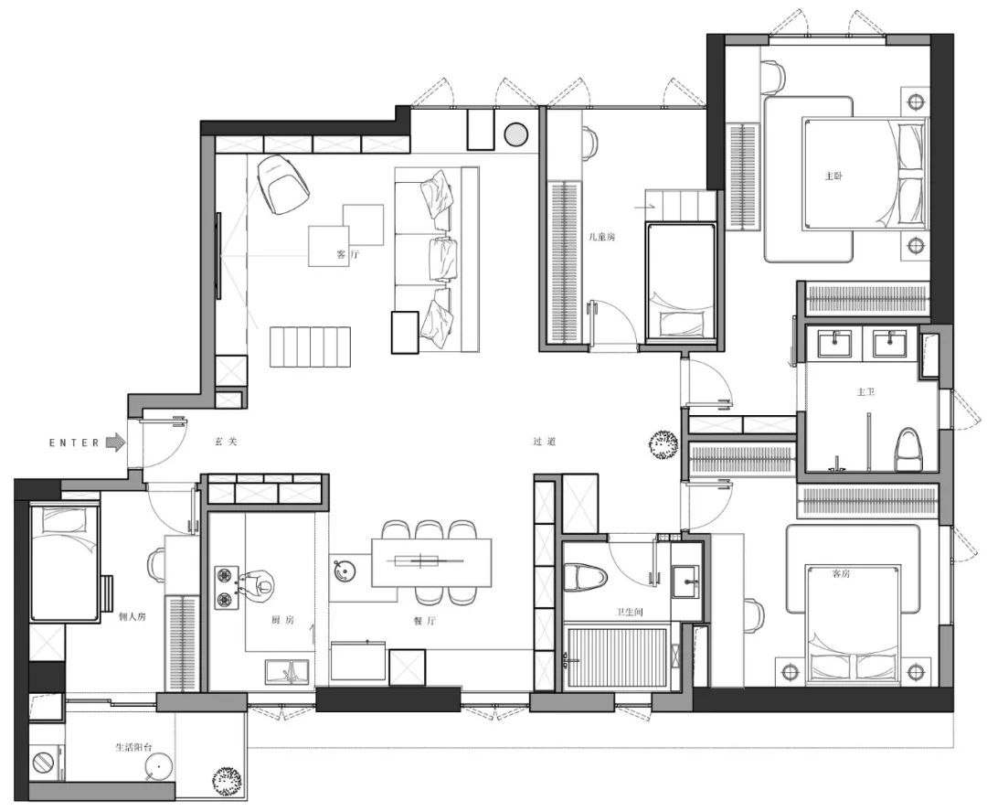
原始格局图·before ▼

平面布置图·after ▼

现场实际效果跟设计效果图相差不大,颜值颇高,居住感舒适。
01.客厅
区别于常见的一字型电视柜,天用团队将柜子延墙拓展,结尾部分是顶天立地的书柜,透明柜门直观又挡尘。
客厅里,柜子是L型设计,沙发是环形设计,两者围着茶几,组成环环相扣的半抱式设计。

在每一个归家的日子里,一家人都会坐在沙发上,看看电视聊聊天。就算什么也不做,安安静静地共处一室,也会感到非常安宁与亲密。


电视柜中部是开放式的格子设计,可作为家居个性风格的展示区;上方则是遮得严严实实的白柜,把屯的物品或生活杂物藏起来。
光从柜子留空处的灯带内打出来,温暖明亮。


中间过道做木饰面吊顶,暗装筒灯、轨道灯以及灯带统统藏于其中,见光不见灯,氛围感十足。
中央空调依势做成斜出风,使用感受轻柔舒适。
餐厅选材是空间各种元素的集合,将自然质朴的木质、简洁利落的亚克力、纹理自然的大理石等很好地融合在一起,空间呈现统一性。


中岛连接了餐厅和厨房,使得操作区域扩大N倍,一些简单的操作可以在餐厅完成。


玄关狭窄,玄关柜向内顺移;嵌入式设计加纯白配色,低调且体量感轻,满足居者需求。
梁位底下包圆角,柔和视觉上的尖锐感,让空间更具包容性。
端景是一棵树和一幅画,有生机又有艺术感。


05.主卧

主卧以简洁舒适为主,床头木饰面与木地板都是素雅清浅的木色,搭配浅色系床品,营造适合睡眠的柔和氛围。

暗香浮动,光影流转。
梳妆台与电脑台合一,一些常用的书籍放在上方的搁板上,随用随取。
主卧有三个衣柜,一个是床侧的长虹柜面,另一个是床尾的纯白柜面,最后一个是进门右侧的黑玻柜面。

儿童房适量加入有童趣的元素,蓝色温柔活泼,床架仿佛小房子,有封闭包裹感,让小朋友对于自己的房间更有认同感和安全感。

书房兼备次卧功能,又长又宽的书桌用起来超“巴适”;有时工作晚了,可以直接在书房睡觉,不影响家人们。

保姆房偏居一隅,减少生活中可能影响主家起居休息的情况。

将部分砖体替换成玻璃砖,能很好地将过道的光线引入卫生间。

两个卫生间都做成了相近的风格,大理石纹理丰富且自然,整体干净而优雅。

