
基本信息-INFORMATION
设计 | Design : 天用设计
地址 | Address :东海嘉园
风格 | Style :现代简约风
面积 | Area :70 ㎡
摄影 | Film : Star

设计阶段-DESIGN
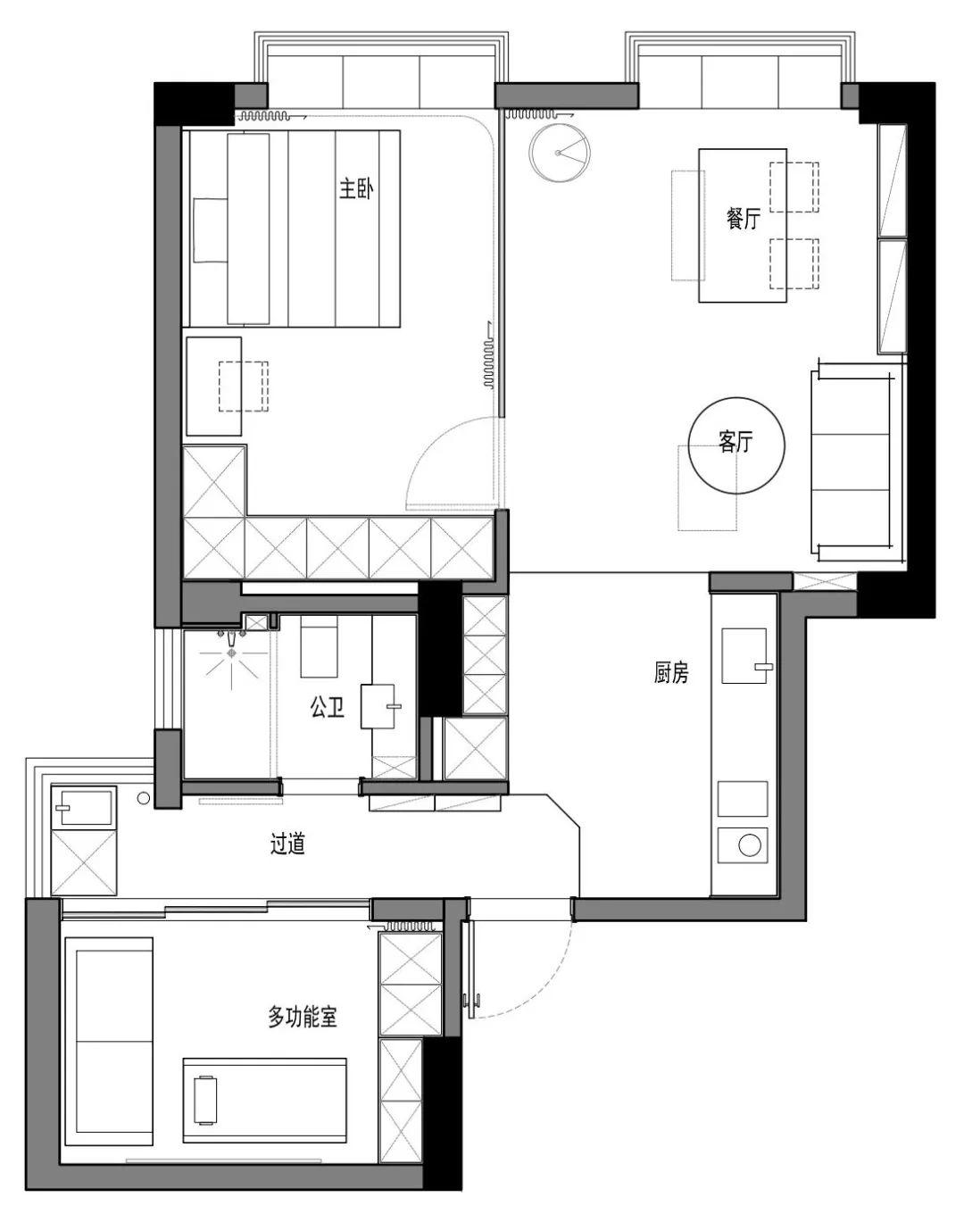
本户型主要改造有以下两点:
①拆墙改玻璃。全屋自然光源不足,室内采光相对较差,设计团队将客厅和主卧打通,以玻璃作墙,拓宽空间;多功能室采用同样的原理,扩大采光范围。
②厨卫移位。厨房移至原餐厅位,卫生间则移至原厨房位,主卧增加衣帽间。

落地实景-ACTUALITY

















