- 房屋信息
设计 | Design :天用设计
地址 | Address : 海骏达花园
面积 | Area:209㎡+290㎡(花园)
风格 | Style:现代北欧风
摄影 | Film:Artgan
看到这套案例的时候,脑海中浮现的是麦兜对于他梦想中马尔代夫的描述:“那里蓝天白云,椰林树影,水清沙幼,是坐落于太平洋的世外桃源”。
刚刚在一个设计群里看到业主发的一个表情,装修四字缄言:算了算了。使人忍俊不禁之余,发现道理的真谛。我们的梦想有很多,但房子就这么大,实现全部的梦想确实困难,那不如把其中一些梦想放到下一套房子里?对每一份设计诚惶诚恐并非出于卑微,而是位于视野高处,如何能做到万全是不可能的,而更好的实现生活理想,应该增加还是减少呢?
面谈那天,业主跟咱们设计师聊了一个多小时就决定付款下单,其实这并非完全出于赚钱的心态,而是您认可我们,我们从心里会更认真。
业主对房间的格局和规划只有大致需求,其他的由设计师填充,自由度大挑战也大。
设计团队将“空间减除”作为主旨,统一使用白色和木色作为大面积辅色,全屋呈现整体统一的特点。阳光透过玻璃落在各种木质品上,时光悠悠,生活静好。
围绕建筑内部与人居需求,以及建筑与自然的互动的设计,各种因素相互牵制。对于设计师来说如何达到人与自然、设计与自然的和谐统一是一件非常值得探索和尝试的事情。
不作无理的夸耀,不尚无理的新奇,而以居住者的实用要求为本。前进时候,时刻提醒自己:勿忘初心。

别墅周围是蓝天绿树好阳光,所以设计师在进行室内设计时大量使用玻璃、白色和木色等辅助色,跟室外相互交融映衬,让景深延伸至室外,更开阔通透。

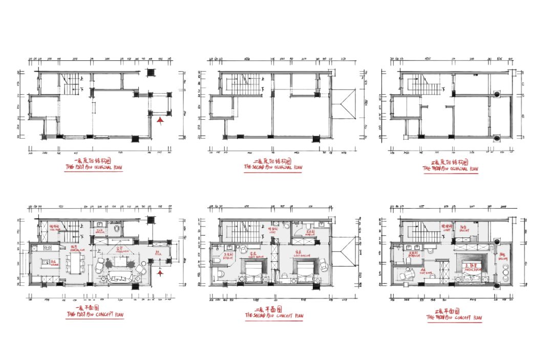
别墅内部根据使用频率和需求各自划分好彼此的位置:一层是起居室公共区;二层是客房;三层是主卧私人区。
“希望客厅可以体现出我的品位,有好的视听空间。”

玄关用简洁造型满足基本功能,半开放式柜体可以放置一些喜欢的收藏品,让入户个性化及拥有惊喜感。


客厅是明亮而活泼的北欧风,四面通透,采光优越。沙发背后大大的彩色挂画,是入户视线的第一焦点。客厅家具统一选用木质细腿款式,让其看起来更加舒适,减少多个软装齐聚造成的冲突感。
我们将客厅的亮色维持在三种以下,其中两种分别是红和绿,剩下的是黑白灰木等相对低调又有质感的隐藏色。吊灯选择了更为自然灵动的树枝状,各种元素加起来,使整体风格独特又鲜明。


电视背景墙是简单的刷了浅灰色漆,以电视为中心,两边平衡对称,有方正整齐的仪式感。
右边的储物柜用于收纳客厅的物品,下方打开,可放音响等设备。
“想要开阔疏朗的厨房。新年时,亲人朋友齐聚,大家一起热热闹闹地做年夜饭;小朋友跑来跑去,期待新鲜出炉的美食。”


餐厅区域抬高地面,同时用镂空屏风隔断客餐厅,隔而透使视线更有层次感。
所有家具的选择都尽可能地注重材料本身的质感,减少多种工艺对它的修饰。原始元素使其充满想象的内涵,仿若身处自然。

餐厅位于客厅和厨房之间,一面是风景独好的大落地窗。纱窗过滤掉耀眼的光线,剩下浅浅阳光投射在室内,营造时光无限好的氛围。
餐椅是直线与曲线的结合,摒弃厚重或沉稳,用自然木色和皮质软垫组合成轻盈简洁的款式。桌旗是与客厅单人椅相互呼应的墨绿色;桌面上的小小插花,让空间更自然和生活化。

餐厨区相互联结,木制品色相保持一致性。中岛处的柱子为构造柱,增强建筑物的整体性和稳定性,是防止房屋倒塌的一种有效措施。


厨房是双I型加中岛。木色和白色铺满空间,前后左右都保留了极大的储物容量,厨房美观度和功能性都获得大大满足。

一层客卫。由于基本不需要满足洗漱需求,所以选择半开放式的收纳柜+闭合的镜柜,有充足的空间将各种凌乱的杂物都藏起来。两盆小绿植增添了生命的气息,也提醒大家要保持卫生。


一层室内外户型图

用玻璃作楼梯护栏,通透性绝佳。全屋硬装构造运用了许多直接又硬朗的线条,但白色相对柔和了其凌厉感,整体旷阔而空灵,进退有度。
“有时候亲爱的家人朋友需要留宿,但不希望房间太简单,希望温馨点,让他们住得愉快。对了,最好里面功能全面点,更加隐私。”


二层客卧选择浅灰色系和木色为主色调。灰蓝床品,浅灰墙面搭配柜体大面积的白色,清朗沉稳,营造静谧的宜睡氛围。房间内部简洁大方,没有做复杂的造型,居住感优秀。


二层的另一间客卧则是较为甜美的灰粉色作为主色调,跟灰蓝有较强的对比;床头是浅灰墙面,保持房间的一致性。开放式展示柜与书桌相连,功能互相延伸,平面放置区更加宽绰。
阳光透过窗和纱照进来,坐在摇椅上摇呀摇,也是人生一大乐事。

二层客卧内各自配置有卫生间,让居者不用延长行为动线,在卧室就能完成清洁工作。卫生间选用相同的水泥灰方形墙砖和正方形地砖,洗浴区则是黑色框架搭配透明玻璃,相互呼应,和谐统一。


二层室内外户型图
“主卧要有很多的阳光,也要酷酷的。还有就是,希望可以满足宅一天不用下楼。”


主卧相对来说更具个性化。蓝白条纹床品更显清朗;挂画的黑色细框与黑色皮质床垫相互呼应;两幅画虽然内容不同,但颜色和排版相似,可为系列。

二楼和三楼都内置有小书房,左边是二楼,右边是三楼。清新纯粹的配色,衬着窗外的蓝天绿树,学习工作都有个好心情!

主卫是双台盆的设计,常用物品放在中间的开放式收纳柜中,方便随用随取;镜柜存放不太常用的物品,收放相间,是便于家居利用的一大要素。


三层室内外户型图
“花园是我最期待的地方之一。希望可以“赏花赏月赏秋香”。哈哈,开玩笑的啦~希望有个空间,可以跟朋友吹吹牛,看看风景,在自然里沉淀一下自我。”


室外花园各种材质相互交错,石材、木材、水泥、碎石以及植物,等等,各居其位,多而不乱。户外休闲区的正对墙面迎合整体做了对应造型,相同色系相互映衬,也算拍照圣地。

在别墅外设计了个单独的茶室。走廊一路引导而至,透明玻璃将景色融入视野;屋前水池倒影清透,宁和雅致。

树影婆娑,绿草蓝天,恰似仙境。玻璃房作为朋友间聚会的地方,置身于自然之中,又有朋友相伴,饮茶聊天,乐哉乐哉!

蓝天绿树将别墅包围,拥抱景色又成为景色。“你在桥上看风景,看风景的人在楼上看你;明月装饰了你的窗子,你装饰了别人的梦。”

