- 项目信息
设计 | Design : 天用设计
地址 | Address :君汇世家
风格 | Style :日式简约风
面积 | Area :180㎡
摄影 | Film : Star.
本期屋主是85后夫妇,三代同堂,居住成员较多。风格上,喜欢日式但太寡淡;喜欢美式但色彩太浓郁。希望设计师在平衡好家人需求和喜好的基础上,协调色彩搭配,营造良好的家庭氛围,呈现温暖舒适的居住空间。
“六人定律”,指任何两个人之间的关系带,基本确定在六个人左右。与业主的结缘,也很巧地来自朋友推荐。前期的了解与信任,让我们之间的沟通与合作相当愉快。历时一年多,设计成果和毕业照最终落地~!


客厅结构立面图▲

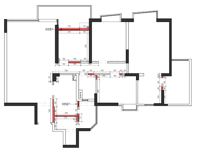
平面设计 | Graphic design
平面格局中,改动最大的地方是厨房。大刀阔斧地打拆两面墙体,根据需求做凹凸位,便于后期嵌入柜体。开放式厨房+中岛的设计,扩大厨房的空间感及视觉效果,加强与客餐厅的联系,形成通透开放的LKD空间。
其他地方的改动,目的是一是制造凹位嵌入柜体,隐藏体量从而降低厚重感;二是充分利用边角空间,增加储物空间。


客 厅 | Living room

给空间做减法的意义是功能性与美观性的共存,室内设计过程考虑的不仅是结构,更是细节、是舒适、是和谐。




餐 厅 | Dining room




玄 关 & 厨 房



卫 生 间 & 阳 台




卧 室 | Bedroom




儿 童 房 | Childroom



改造前VS改造后


